EFH Gasser
Eichhof 6, 6161 Natters, Tirol
klimaaktiv Bronze, Fertigstellungsdeklaration, Neubau
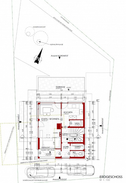
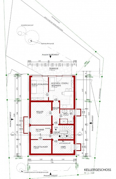
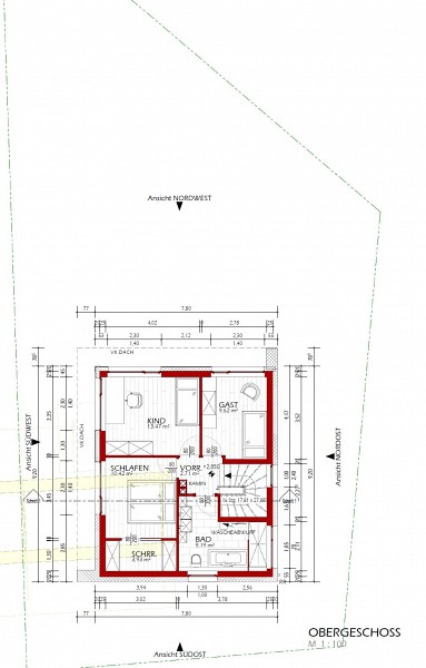
Neubau eines Einfamilienhauses in Holzbauweise auf Massivbetonkeller.
Allgemein
Ein- / Zweifamilienhaus, Fertigstellung 2018
Baujahr Bestandsgebäude 2018
klimaaktiv Deklaration: 2018
deklariert nach: klimaaktiv Kriterienkatalog 2017 - Neubau
Beteiligte
BauherrIn / Bauträger:
Gasser
Architekt / Planung:
Arch'e concept Bmstr. DI Hansjörg Glatzl
Haustechnik, HKL, E-Technik:
Huter Haustechnik GmbH
Bauleitung / ÖBA:
Arch'e concept Bmstr. DI Hansjörg Glatzl
Gebäudedeklaration: aon
| Kriterium | Wert |
|---|---|
| Konditionierte Brutto-Grundfläche (BGF) | 197.63 m² |
| Nettonutzfläche | 140.85 m² |
| Anzahl der Wohn-/Nutzungseinheiten | 1 |
| Anzahl der Geschoße | 3 |
| Bauweise | Mischbau |
| Heizsystem Raumheizung | Wärmepumpe |
| Heizsystem Warmwasser | Wärmepumpe |
| Art des Lüftungssystems | mit Wärmerückgewinnung |
| Bereitstellung Warmwasser | zentral |
Energiedaten berechnet nach OIB Richtlinie 6 - 2015
| Kriterium | Wert |
|---|---|
| Heizwärmebedarf (HWB) | 27.75 kWh/m²a |
| Primärenergiebedarf (PEB) | 71.58 kWh/m²a |
| CO2-Emissionen | 10.34 kgCO2/m²a |
| lc-Wert | 1,4084507042254 m |
| Kriterium | Wert |
|---|---|
| OI3 Index (TGH, BGF, BG1) | 111.3 |
| Kriterium | Wert |
|---|---|
| Blower Door Test (n50-Wert) | 0.44 1/h |